83400 Hyères
Appartement à Hyères 83400
Appartement à Hyères 83400
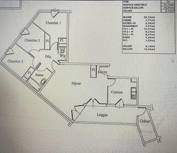
Appartement T4 au 4e et dernier étage avec ascenseur exposé plein sud
Climatisé
Surface habitable 77,72 m2
Pièce de vie Séjour
3 chambres
Salle de bains
WC séparés
Grand balcon terrasse
Cellier /buanderie
2 places de parking en s/sol
En centre-ville, à proximité de tout commerce et écoles
À 10 minutes de l’aéroport, Toulon Hyeres
Climatisé
Surface habitable 77,72 m2
Pièce de vie Séjour
3 chambres
Salle de bains
WC séparés
Grand balcon terrasse
Cellier /buanderie
2 places de parking en s/sol
En centre-ville, à proximité de tout commerce et écoles
À 10 minutes de l’aéroport, Toulon Hyeres
335 000 €
77 m²
Code Postal
83400
Ville
Hyères
Type de bien
Appartement
GES
En cours
Classe énergie
En cours
Mise en ligne
9 mars 2026
Nombre de vues
1 788