83490 Le Muy
Villa de plain pied
Villa de plain pied
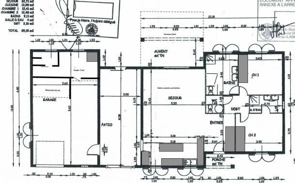
Dans quartier résidentiel très calme, jolie villa plain pied de 124m2 et un garage de 55m2.
Informations :
- Séjour de 42m2 avec cuisine ouverte entièrement équipée,
- 2 chambres de 12 et 13 m2 avec leur salle d’eau respective avec double vasque et douche italienne,
- 2 toilettes séparées
- Pièce de 30m2 pouvant être transformée en chambre ou bureau,
- Garage avec mezzanine et pièce aménagée en studio
- Terrasse carrelée de 30m2 avec pergolas en bois de 20m2,
- Terrain de 678m2 avec piscine 4x9m avec sa plage dallée.
Prestations :
Double vitrage, portes fenêtres coulissantes, volets roulants électriques à commande centralisée, climatisation, éclairage extérieur, interphone, portail électrique…
Exposition Sud Est - Sud Ouest, vue collines, accès libre à l’eau du canal de Provence
Centre commercial à 200m (coiffeur, pharmacie, centre médical, boulangerie, tabac presse, carrefour market, etc…)
Diagnostic de Performance Energétique : C (112)
Gaz à effet de serre : A (4)
Très belles prestations, coup de coeur assuré !
Visite assurée par ses propriétaires, vente directe.
Informations :
- Séjour de 42m2 avec cuisine ouverte entièrement équipée,
- 2 chambres de 12 et 13 m2 avec leur salle d’eau respective avec double vasque et douche italienne,
- 2 toilettes séparées
- Pièce de 30m2 pouvant être transformée en chambre ou bureau,
- Garage avec mezzanine et pièce aménagée en studio
- Terrasse carrelée de 30m2 avec pergolas en bois de 20m2,
- Terrain de 678m2 avec piscine 4x9m avec sa plage dallée.
Prestations :
Double vitrage, portes fenêtres coulissantes, volets roulants électriques à commande centralisée, climatisation, éclairage extérieur, interphone, portail électrique…
Exposition Sud Est - Sud Ouest, vue collines, accès libre à l’eau du canal de Provence
Centre commercial à 200m (coiffeur, pharmacie, centre médical, boulangerie, tabac presse, carrefour market, etc…)
Diagnostic de Performance Energétique : C (112)
Gaz à effet de serre : A (4)
Très belles prestations, coup de coeur assuré !
Visite assurée par ses propriétaires, vente directe.
398 000 €
124 m²
Code Postal
83490
Ville
Le Muy
Type de bien
Maison
GES
C
Classe énergie
A
Mise en ligne
20 mai 2026
Nombre de vues
648